- 90 m²
- 2 chambres

Bel appartement situé à deux pas de l'enjambée
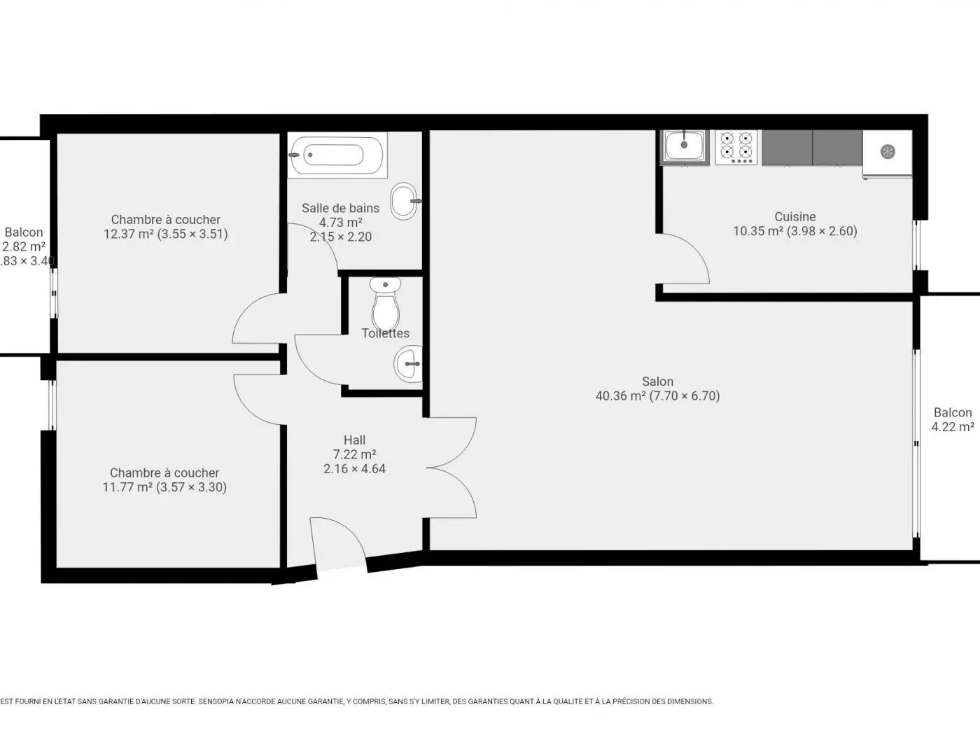
JAMBES... La quiétude de ce quartier en plein coeur de Jambes ne peut que vous séduire. Ce bel appartement situé à deux pas de l'enjambée vous propose un accès direct au centre de Namur et de Jambes. Il dispose d'une incroyable pièce de vie de plus de 40m2 donnant accès à un balcon, d' une cuisine, de deux chambres dont une avec balcon et vue sur \"la tortue\" de Namur, d'une salle de bain et d'un W.C. séparé. L'appartement dispose également d'une cave. Attention il ne va pas rester longtemps sur la marché ! À très bientôt.
- Référence 15956
- Disponibilité A l'acte
- Catégorie Bel appartement situé à deux pas de l'enjambée
- Année de construction 1985
- Meublé Non
- Revenu cadastral 1157€
- État du bâtiment Bon
- Étage 4/5
- Chambre(s) 2
- Salle(s) de bains 1
- WC(s) 1
- Grenier Non
- Chauffage C.C. au gaz
- Cuisine Armoires et appareils
- Vitrage Double
- Avec bureau Non
- Ascenseur Oui
- Surface habitable 90 m²
- Surface du living 40 m²
- Surface de la terrasse 6 m²
A
B
C C
D
E
F
G
- Code unique 20230214033443
- Energie spécifique (kWh/m²/an) 203
- Energie totale (kWh/an) 20794
- Emission CO2 (kg CO2/m²/an) 38
265.000 €
Intéressé par ce bien ?
081 22 98 22
ou via notre formulaire