- 580 m²
- 12 chambres
- 6 sdb

Éveillez vos sens au bord de la meuse, dans ce joyau aux multiples possibilités
Majestueuse bâtisse datant des années 1800, un joyau chargé d'histoire qui transcende le temps. Actuellement exploité en tant que charmante maison d'hôtes, ce bien exceptionnel offre une polyvalence rare, vous permettant de transformer cette propriété unique en un sanctuaire résidentiel incomparable.
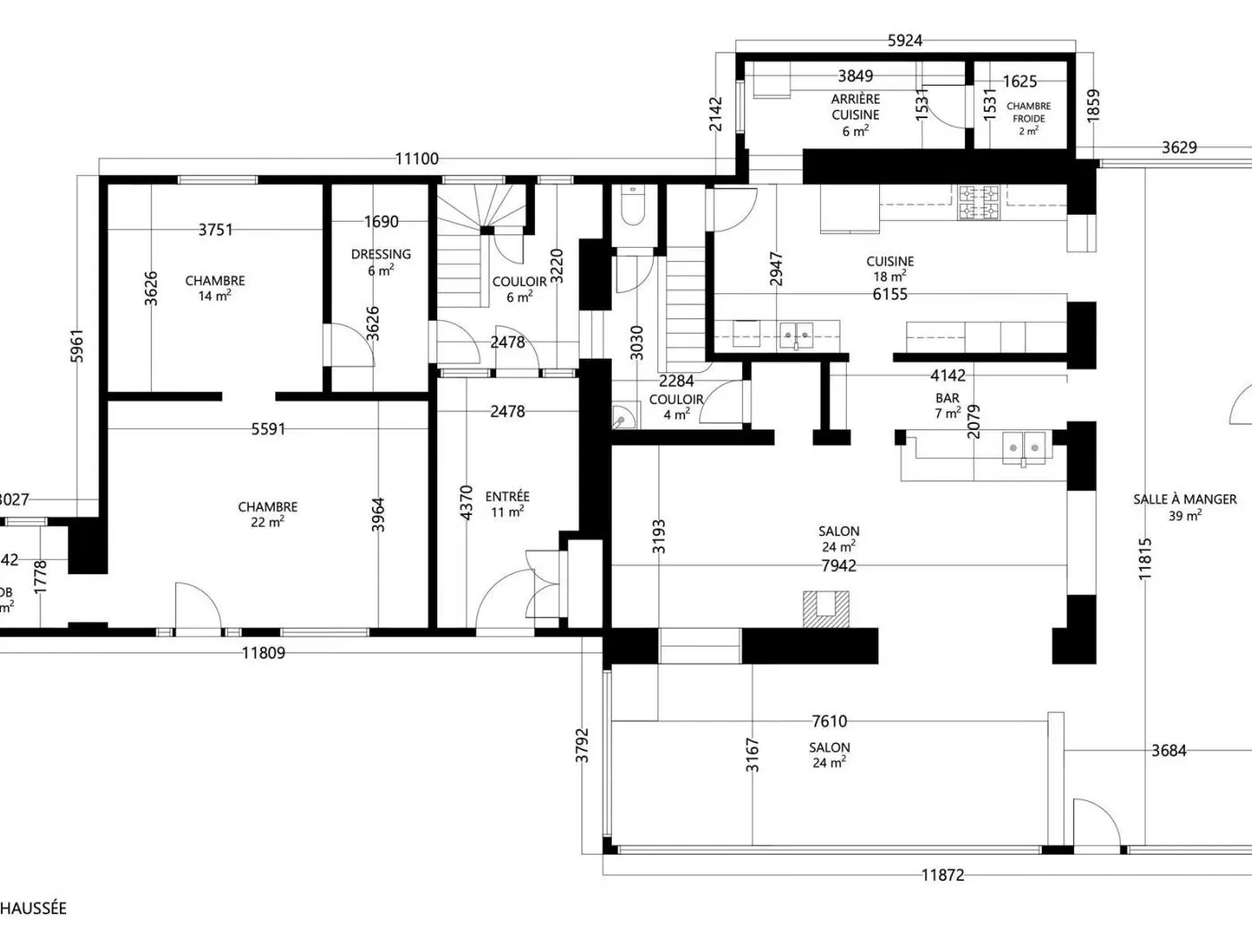
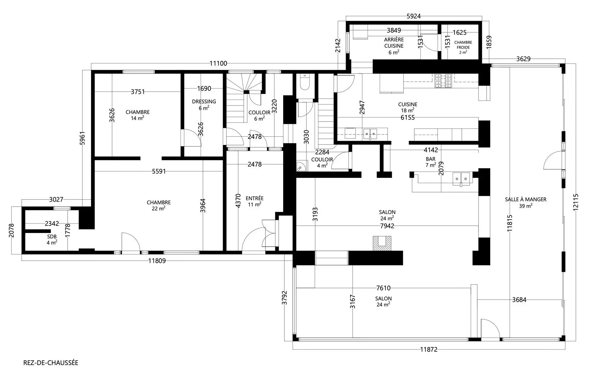
Au cœur de la première partie, découvrez une véritable oasis de confort et d'élégance. Le rez-de-chaussée s'ouvre sur un vaste espace réunissant salon, salle à manger et bar. Une cuisine entièrement équipée, son arrière-cuisine et une chambre froide. Un atelier et un WC complètent cet espace.
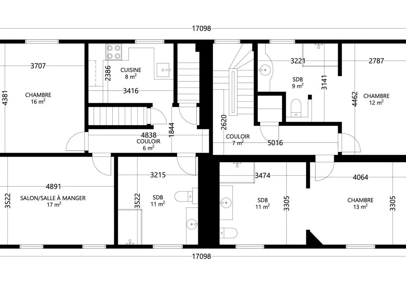
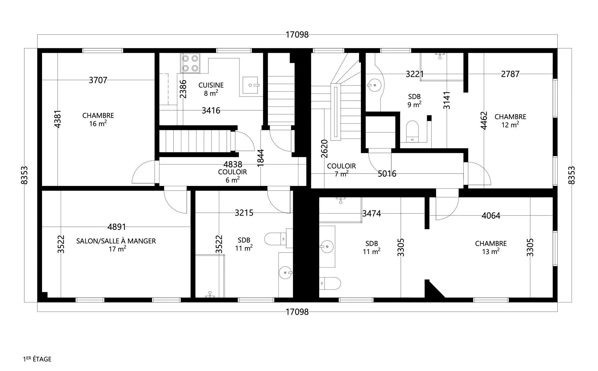
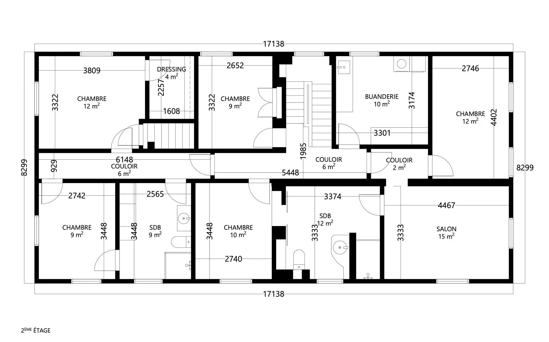
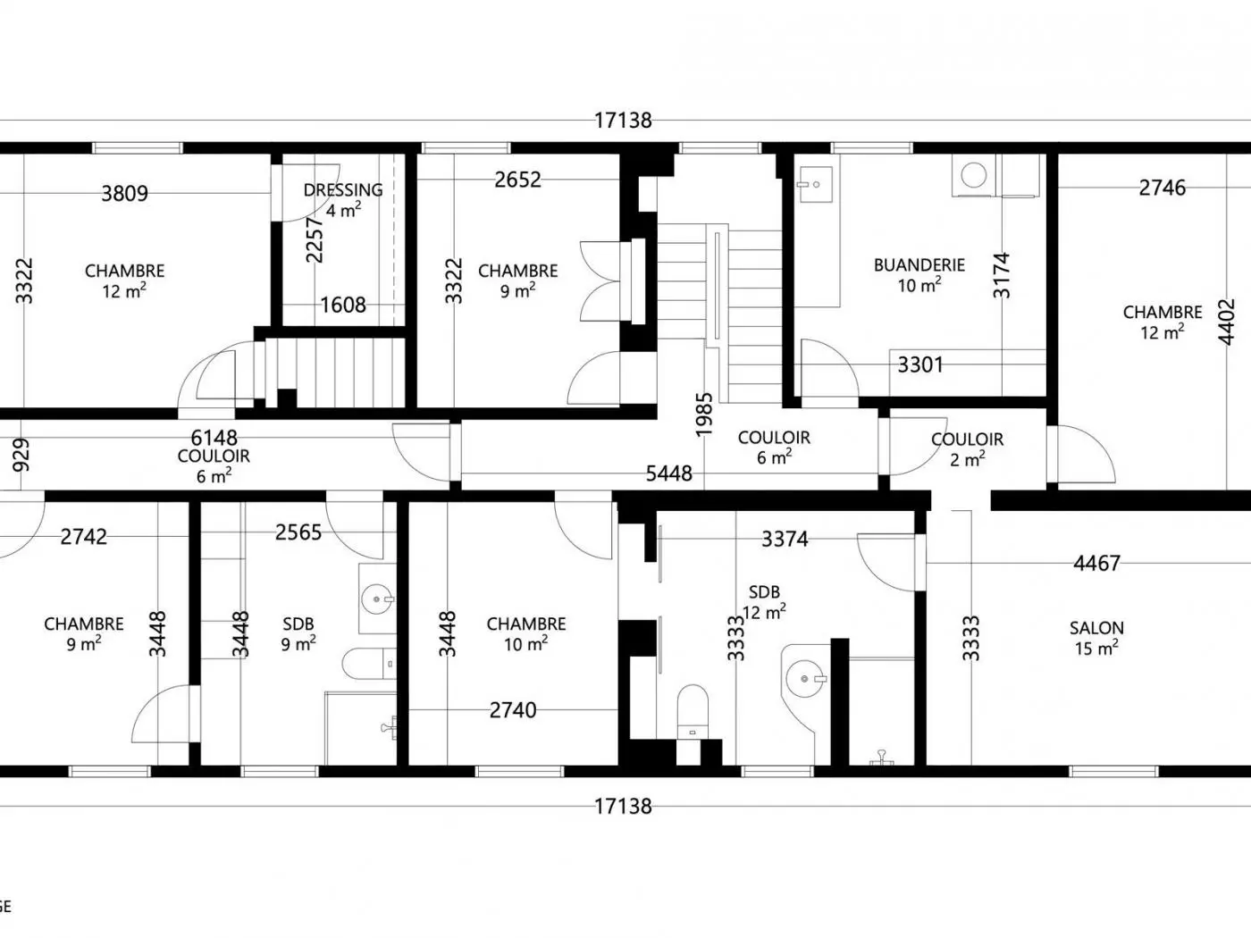
À l'étage, l'histoire continue avec deux chambres, chacune avec sa salle de douche. Le deuxième étage présente une suite somptueuse avec deux chambres, un salon et une salle de douche, un espace privé composé de deux chambres et d'une salle de douche. Pour compléter ce niveau, deux chambres indépendantes et une buanderie.
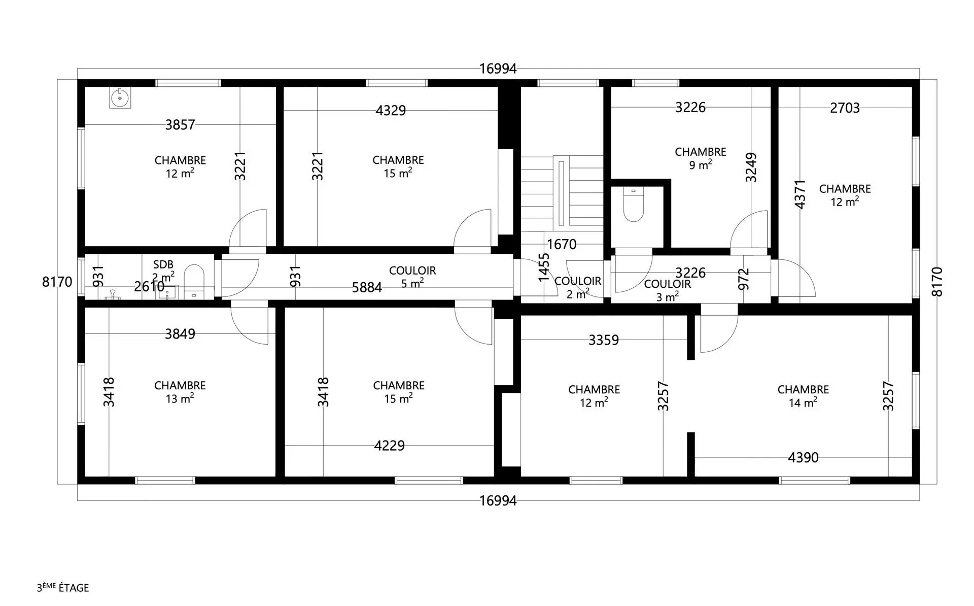
Le troisième étage offre des perspectives infinies avec deux espaces privatifs à aménager en retraites exceptionnelles, chacun pouvant accueillir jusqu'à deux chambres.
La deuxième partie abrite un gîte/appartement à terminer au rez-de-chaussée avec pièce de vie, cuisine, chambre et salle de douche. Au premier étage, un autre gîte/appartement propose salon/salle à manger, cuisine, chambre et salle de douche.
Imaginez la vie dans cet écrin d'histoire, où chaque pierre raconte une époque révolue.
- Référence 16544
- Disponibilité A convenir
- Catégorie Éveillez vos sens au bord de la Meuse, dans ce joyau aux multiples possibilités
- Année de construction 1850
- Meublé Non
- Revenu cadastral 1477€
- Chambre(s) 12
- Salle(s) de douche 6
- WC(s) 7
- Grenier Oui
- Chauffage C.C. au mazout
- Cuisine Entièrement équipée
- Vitrage Double
- Avec bureau Non
- Ascenseur Non
- Surface habitable 580 m²
- Surface du jardin 632 m²
- Surface du terrain 820 m²
A
B
C
D
E E
F
G
- Code unique 20230222016329
- Energie spécifique (kWh/m²/an) 366
- Energie totale (kWh/an) 240749
- Emission CO2 (kg CO2/m²/an) 91
759.000 €
Intéressé par ce bien ?
081 22 98 22
ou via notre formulaire