- 135 m²
- 4 chambres

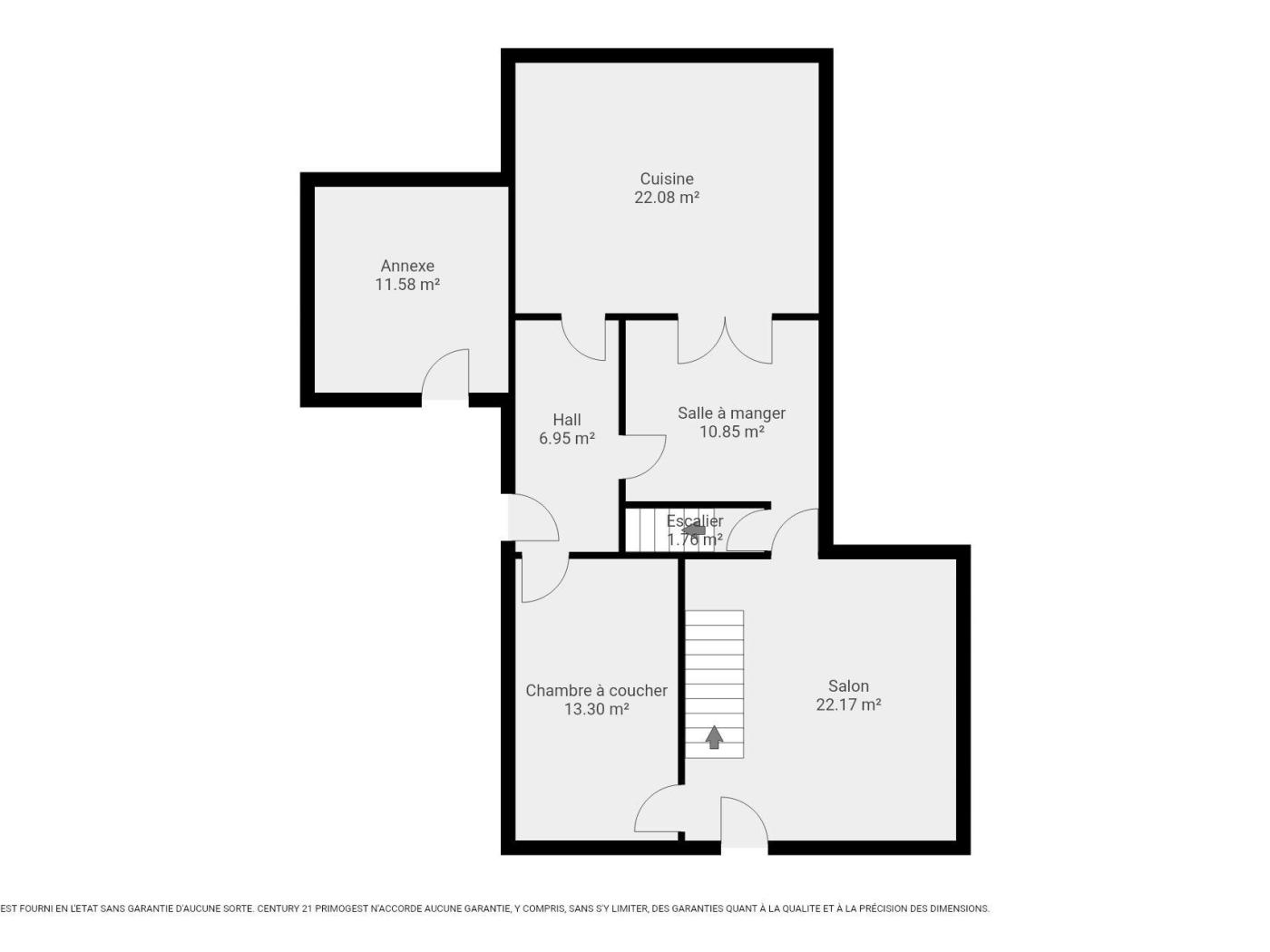
Maison 3 façades idéalement située
Située dans le secteur recherché de Flawinne, à proximité immédiate des commerces, écoles et des principales commodités, cette maison trois façades offre une belle opportunité pour les candidats souhaitant personnaliser leur futur lieu de vie.
Le bien dispose de tous les espaces de vie nécessaires au confort d’une famille et offre un beau potentiel d’aménagement, avec la possibilité d’y créer jusqu’à quatre chambres, dont une au rez-de-chaussée, un atout appréciable pour une chambre parentale ou un espace bureau. La salle de bain nécessite une modernisation, tandis que des travaux permettront de remettre l’ensemble au goût du jour et de valoriser pleinement les volumes existants.
Des éléments importants ont déjà été renouvelés ces dernières années, notamment la toiture et la chaudière, constituant un avantage non négligeable dans un projet de rénovation.
À l’extérieur, la maison bénéficie d’un agréable jardin, idéal pour profiter des beaux jours, ainsi que d’une annexe attenante offrant un espace de rangement ou d’aménagement supplémentaire, complétée par une dépendance servant actuellement d’abri de jardin.
Une maison offrant un beau potentiel dans un emplacement apprécié, à découvrir sans tarder pour y imaginer votre futur projet de vie.
- Référence 16682
- Disponibilité A l'acte
- Catégorie Maison 3 façades idéalement située
- Meublé Non
- Revenu cadastral 525€
- État du bâtiment A rénover
- Chambre(s) 4
- Salle(s) de bains 1
- WC(s) 1
- Grenier Non
- Chauffage C.C. au gaz
- Vitrage Double
- Avec bureau Non
- Ascenseur Non
- Surface habitable 135 m²
- Surface du terrain 848 m²
A
B
C
D
E E
F
G
- Code unique 20260215004503
- Energie spécifique (kWh/m²/an) 342
- Energie totale (kWh/an) 58706
- Emission CO2 (kg CO2/m²/an) 63
240.000 €
Intéressé par ce bien ?
081 22 98 22
ou via notre formulaire