- 207 m²
- 4 chambres

Charmante maison en pierre aux multiples possibilités !
OPTION... Située dans un charmant village à quelques minutes de Dinant, d’Onhaye et d'Anhée, cette propriété offre un cadre paisible et verdoyant, idéal pour une famille.
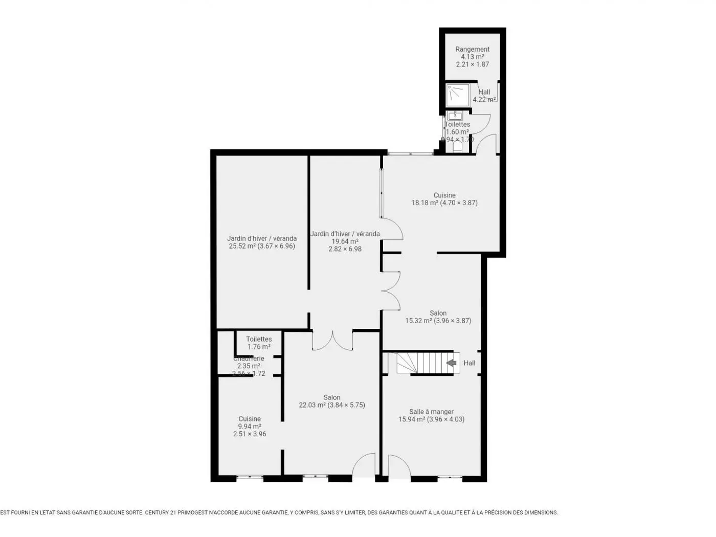
La maison se compose de deux parties distinctes. La première, d’environ 123 m² habitables et en bon état, propose de beaux espaces lumineux, une grande cuisine équipée, deux vastes chambres, une chambre d’appoint ou bureau, une salle de douche moderne, un grenier de rangement ainsi qu’une cave. La seconde partie, en gros œuvre fermé (± 84 m²), offre un potentiel considérable pour un agrandissement de la maison, l’aménagement d’un espace professionnel (profession libérale) ou tout autre projet.
Une infraction urbanistique est en cours de régularisation. À noter que le garage et l’atelier présents ne pourront être utilisés qu’en tant que véranda ou jardin d’hiver.
À l’extérieur, profitez d’une belle terrasse, d’un jardin soigné avec abri et robot tondeuse, ainsi que de deux places de parking à l’avant.
Ce bien dispose également de 16 panneaux photovoltaïques, garantissant des économies d’énergie significatives.
Faire offre à partir de 235.000 € (sous réserve d’acceptation des propriétaires).
Ne manquez pas cette belle opportunité !
- Référence 16521
- Disponibilité A convenir
- Catégorie Charmante maison en pierre aux multiples possibilités !
- Meublé Non
- Revenu cadastral 384€
- État du bâtiment Bon
- Orientation Nord-ouest
- Chambre(s) 4
- Salle(s) de bains 1
- WC(s) 1
- Grenier Oui
- Chauffage C.C. au mazout
- Cuisine Entièrement équipée
- Vitrage Double
- Avec bureau Non
- Ascenseur Non
- Surface habitable 207 m²
- Surface du terrain 891 m²
A
B
C
D D
E
F
G
- Code unique 20241216006420
- Energie spécifique (kWh/m²/an) 291
- Energie totale (kWh/an) 49468
- Emission CO2 (kg CO2/m²/an) 72
235.000 €
Intéressé par ce bien ?
081 22 98 22
ou via notre formulaire