- 180 m²
- 5 chambres
- 1 garage

Charmante propriété alliant espace, lumière et confort
Cette magnifique maison 4 façades allie espace, lumière et confort dans un cadre verdoyant, calme et champêtre, tout en restant à proximité des commodités et des grands axes. Avec plus de 37 ares de terrain et une orientation plein sud, son jardin baigné de soleil invite à la détente et aux moments en famille.
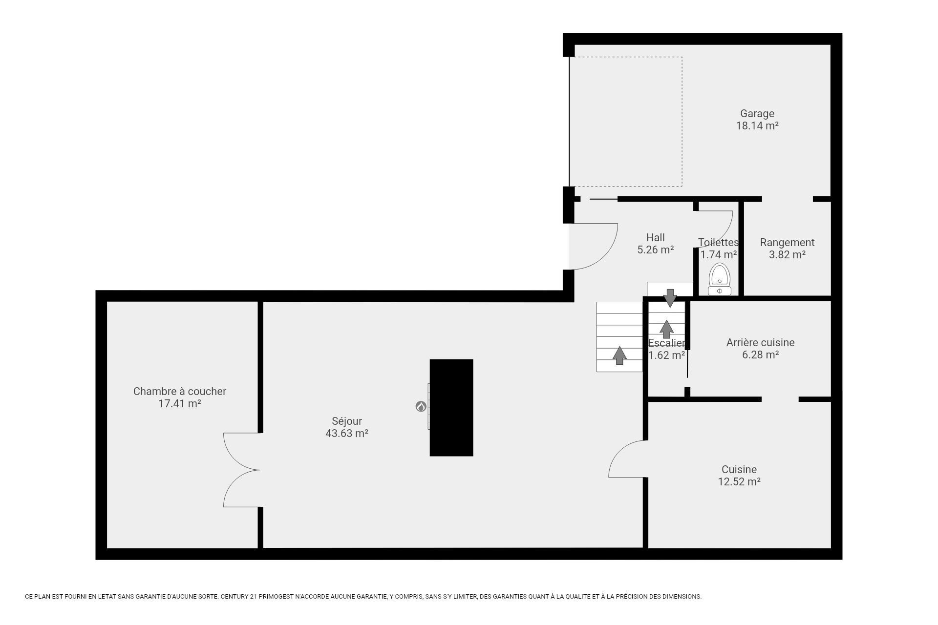
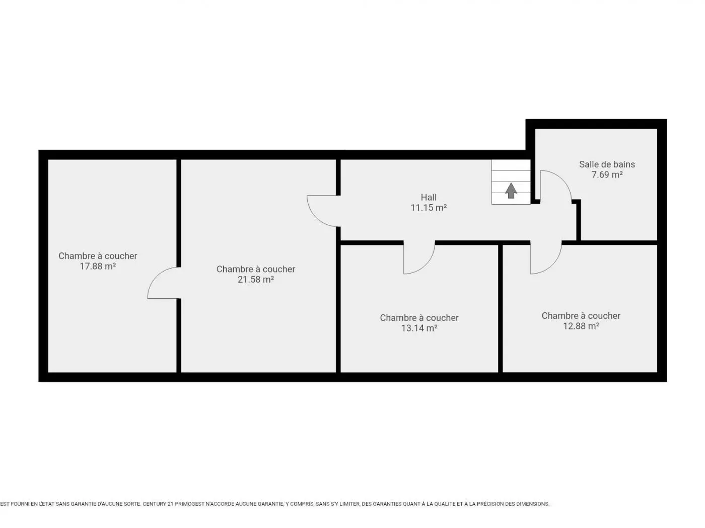
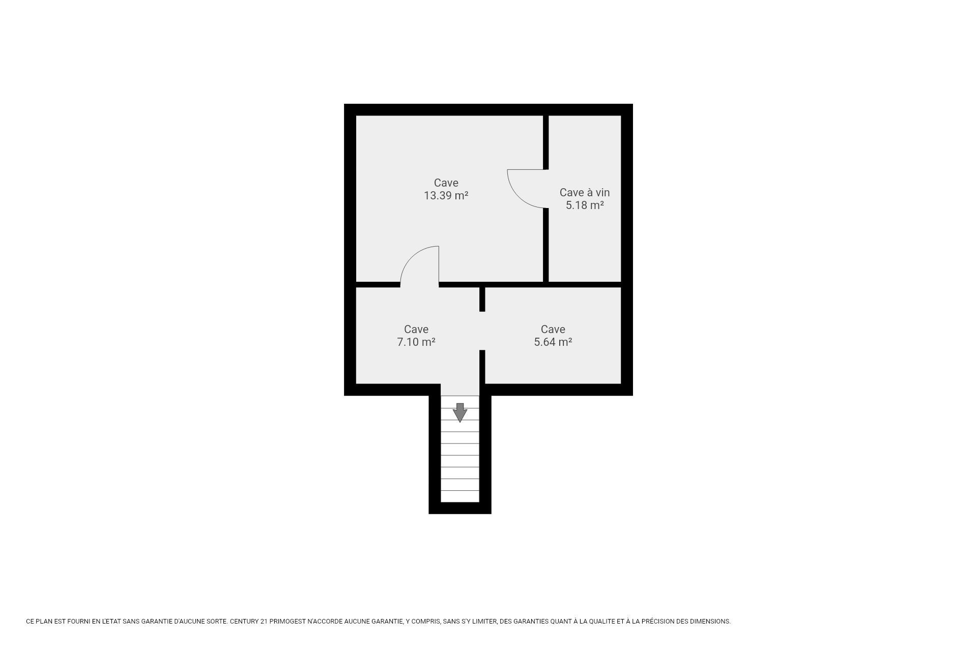
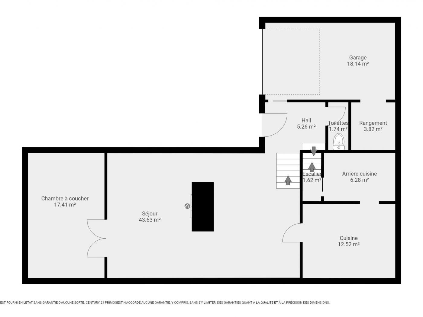
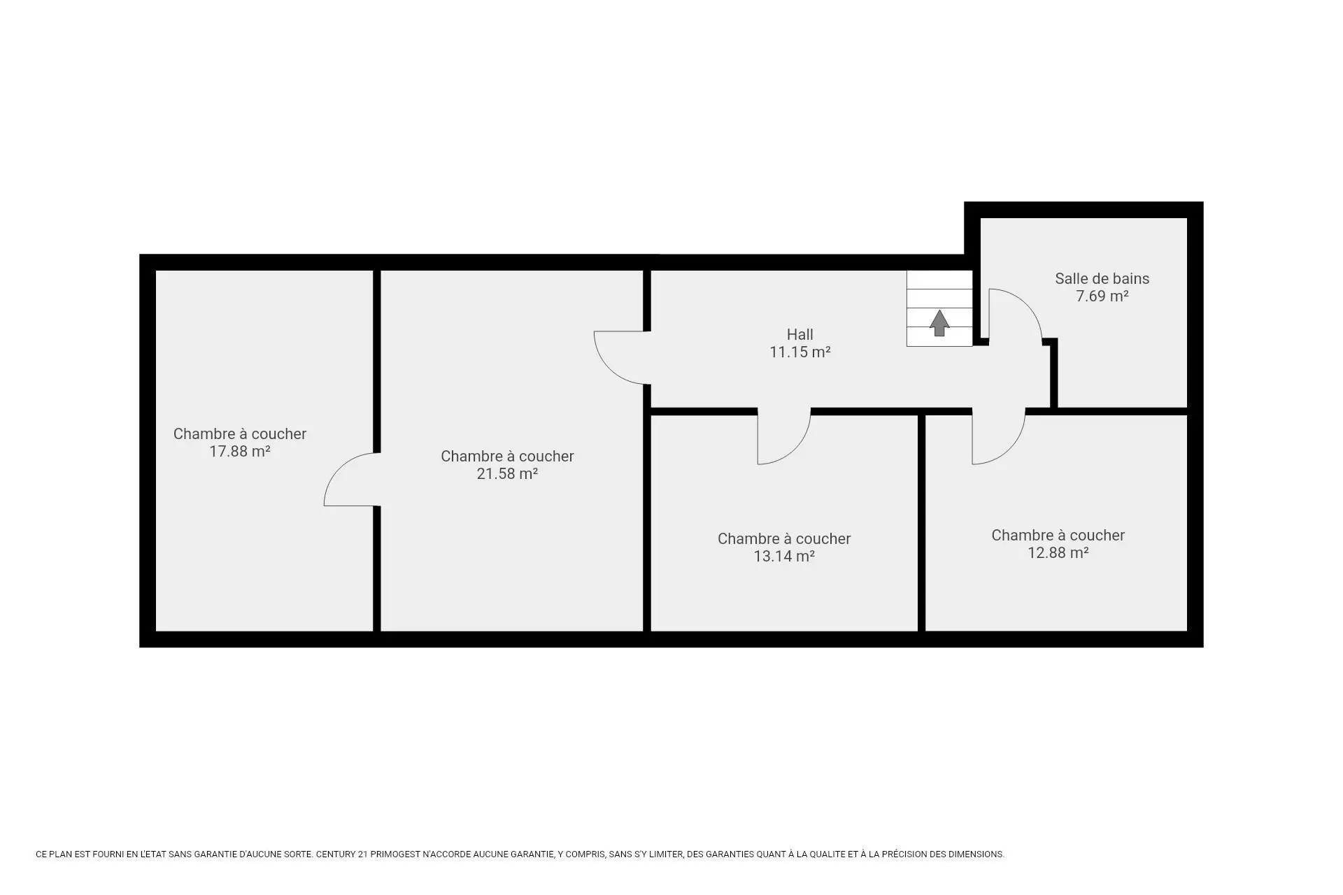
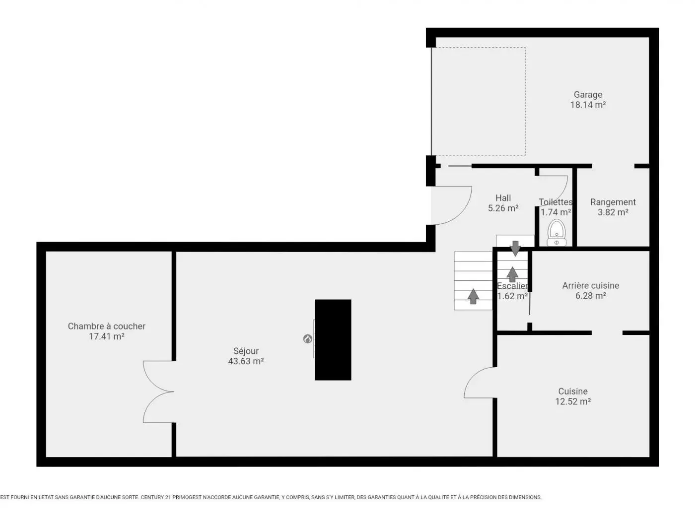
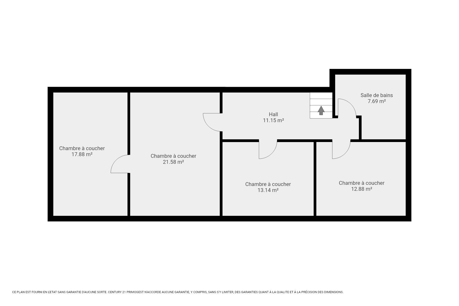
L’intérieur séduit immédiatement par sa très grande pièce de vie lumineuse, agrémentée d’une cassette électrique, et sa cuisine fonctionnelle avec arrière-cuisine, idéale pour cuisiner et recevoir. Cinq chambres spacieuses offrent un espace modulable pour toute la famille ou un usage professionnel. Une salle de douche complète l’ensemble, tandis que cave et garage apportent un confort supplémentaire.
Écologique et économique, la maison dispose de panneaux photovoltaïques et d’un PEB C. Chaque détail a été pensé pour offrir un cadre de vie agréable, lumineux et pratique.
Rare sur le marché, cette propriété exceptionnelle représente un véritable havre de paix où il fait bon vivre. Une visite suffit pour tomber sous le charme et imaginer votre nouvelle vie dans ce lieu unique.
Faire offre à partir de 525.000€ (sous réserve de l'acceptation des propriétaires).
- Référence 16620
- Catégorie Charmante propriété alliant espace, lumière et confort
- Meublé Non
- Revenu cadastral 1420€
- État du bâtiment Excellent
- Orientation Sud
- Chambre(s) 5
- Salle(s) de bains 1
- WC(s) 2
- Grenier Non
- Chauffage C.C. au mazout
- Cuisine Equipée
- Vitrage Double
- Avec bureau Non
- Ascenseur Non
- Surface habitable 180 m²
- Surface du terrain 3703 m²
A
B
C C
D
E
F
G
- Code unique 20220913023935
- Energie spécifique (kWh/m²/an) 255
- Energie totale (kWh/an) 56850
- Emission CO2 (kg CO2/m²/an) 62
525.000 €
Intéressé par ce bien ?
081 22 98 22
ou via notre formulaire