- 135 m²
- 4 chambres
- 1 garage

Panorama unique au fond d'une allée privée
Située au bout d’une allée privée dans un beau quartier de Wépion, cette charmante maison offre un cadre de vie exceptionnel avec une vue époustouflante et unique sur la Meuse et le rocher du Neviau.
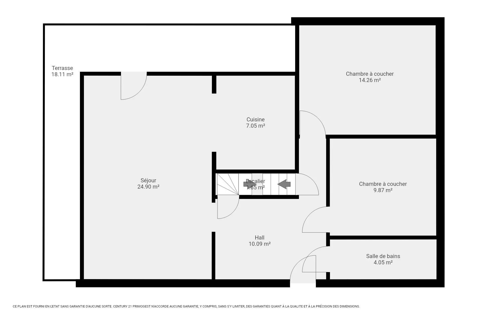
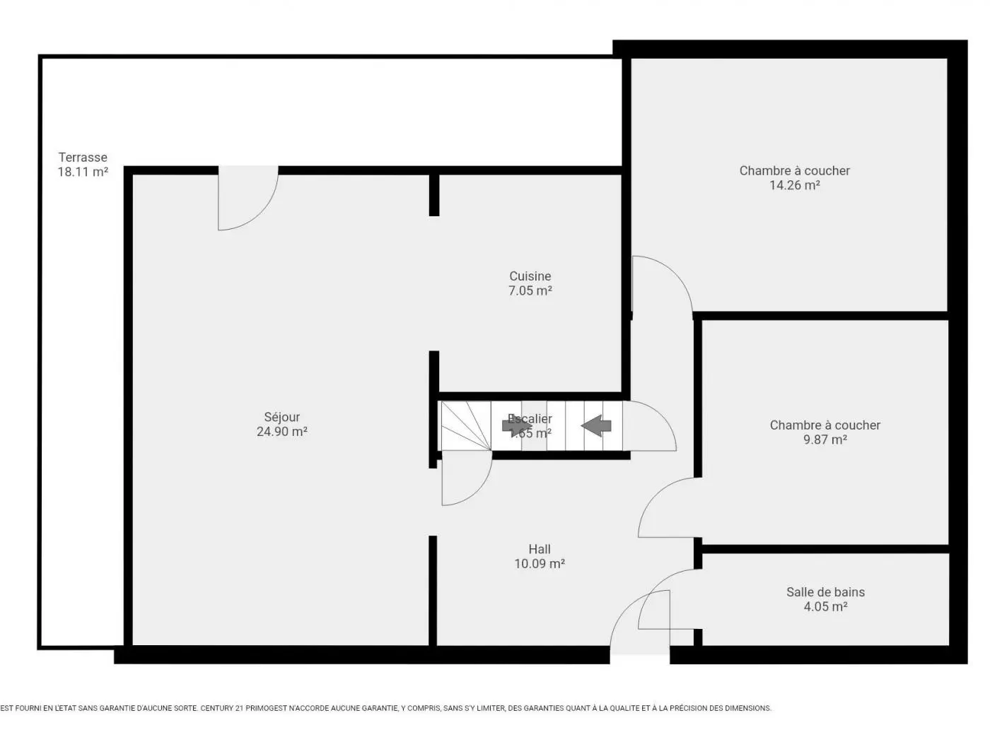
Dès l’entrée, un hall accueillant vous mène vers la pièce de vie baignée de lumière, ouverte sur la cuisine et bénéficiant d’un panorama absolument imprenable, véritable tableau naturel au fil des saisons. Le niveau principal se compose également de deux chambres confortables ainsi que d’une salle d’eau fonctionnelle.
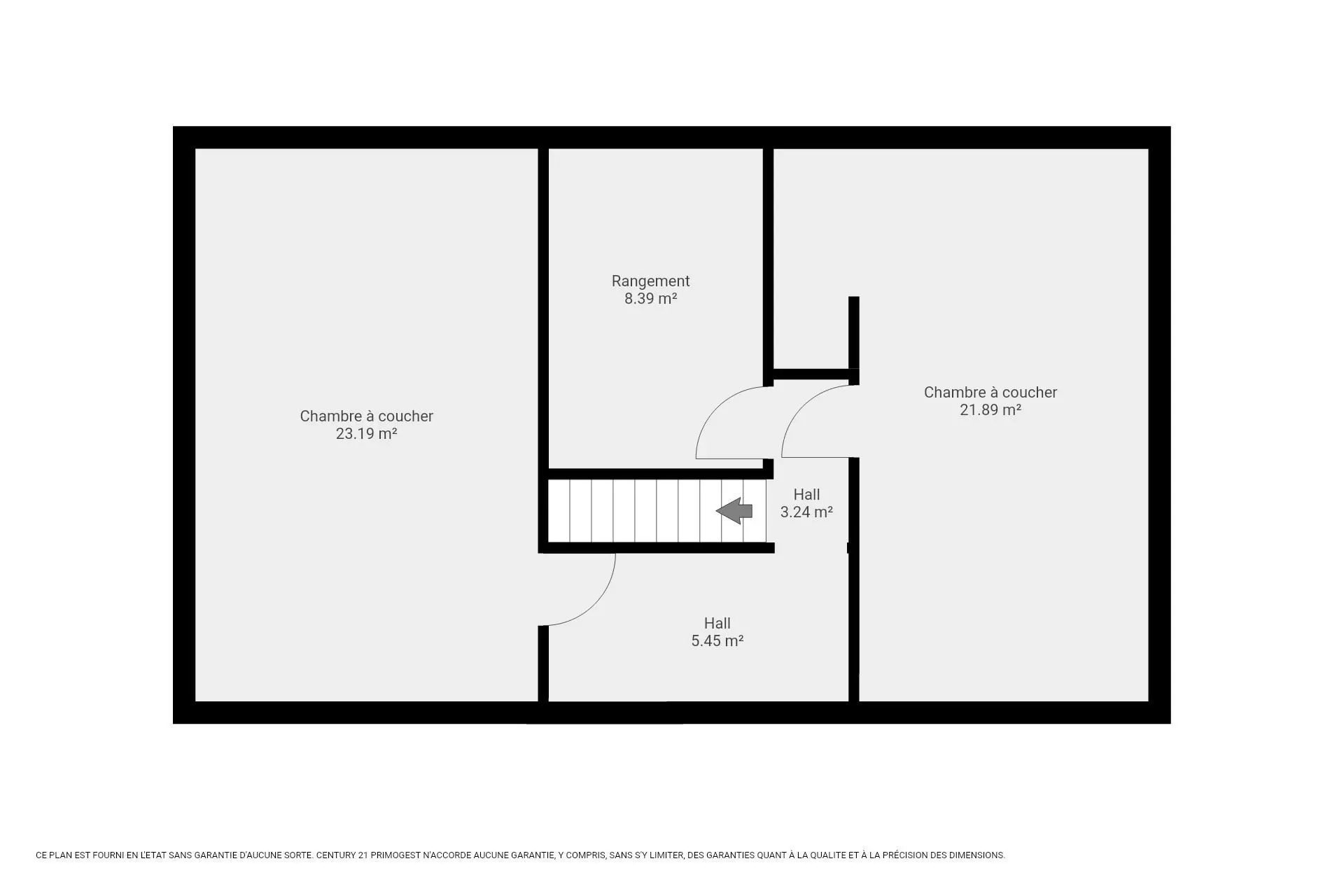
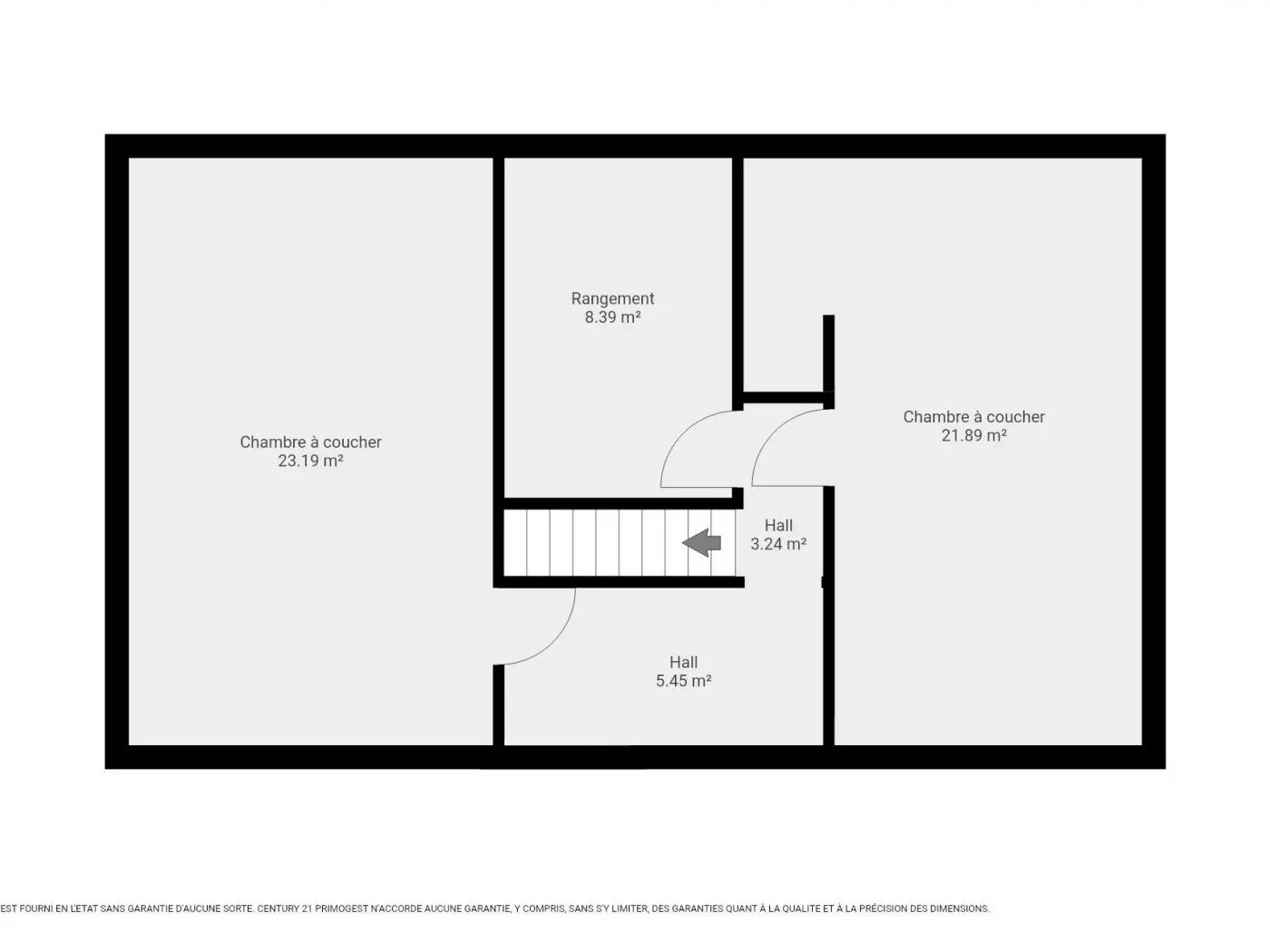
À l’étage, deux chambres supplémentaires et un espace de rangement viennent compléter l’ensemble, offrant de multiples possibilités d’aménagement.
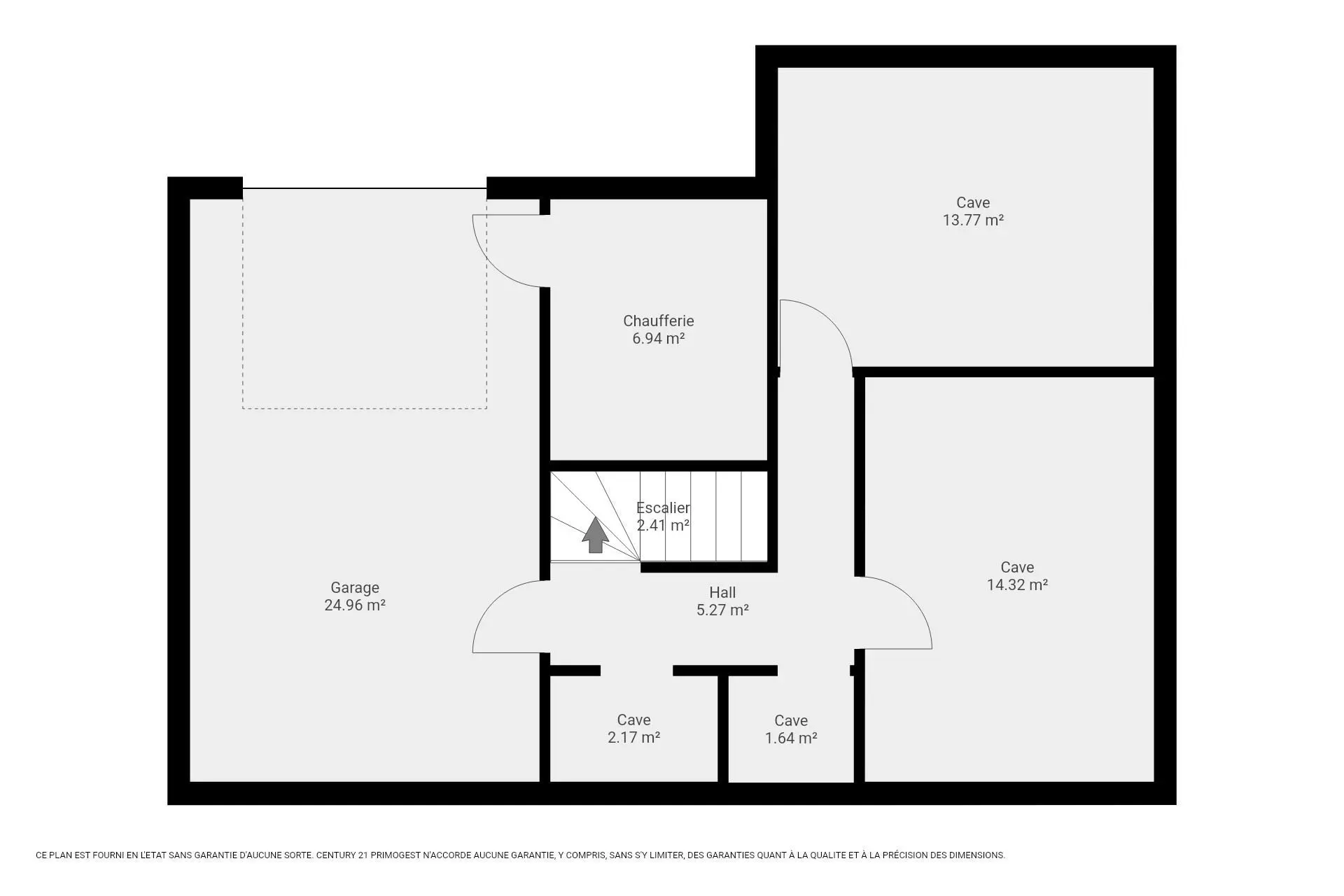
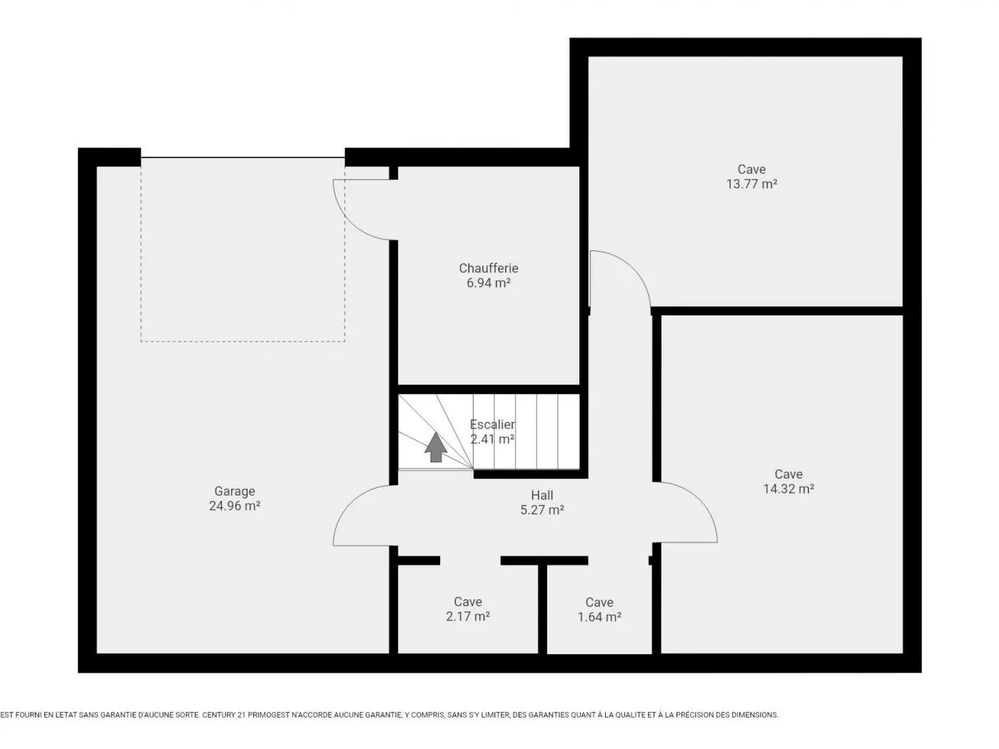
Entièrement cavée, la maison dispose également d’un garage pratique et sécurisé. Idéalement située, elle profite de la tranquillité d’un quartier recherché tout en restant à proximité des transports en commun, des commodités et de l’ensemble des services de Wépion.
Si vous recherchez une atmosphère unique, une vue dont on ne se lasse jamais et une maison prête à accueillir vos projets, venez la découvrir : elle pourrait bien être votre prochain coup de cœur.
Faire offre à partir de 349.000€ (sous réserve de l'acceptation des propriétaires).
- Référence 16630
- Disponibilité A convenir
- Catégorie Panorama unique au fond d'une allée privée
- Année de construction 1957
- Meublé Non
- Revenu cadastral 1120€
- État du bâtiment Bon
- Chambre(s) 4
- Salle(s) de bains 1
- WC(s) 1
- Grenier Oui
- Chauffage C.C. au mazout
- Cuisine Equipée
- Vitrage Double
- Avec bureau Non
- Ascenseur Non
- Surface habitable 135 m²
- Surface du terrain 974 m²
A
B
C
D
E
F F
G
- Code unique 20251130003045
- Energie spécifique (kWh/m²/an) 427
- Energie totale (kWh/an) 48299
- Emission CO2 (kg CO2/m²/an) 106
349.000 €
Intéressé par ce bien ?
081 22 98 22
ou via notre formulaire