Retour aux biens
immeuble à appartements - 1.499.000 €
Rue Notre Dame au Bois 46
1440 Braine-le-Château
1440 Braine-le-Château
- 6 chambres
- 3 sdb

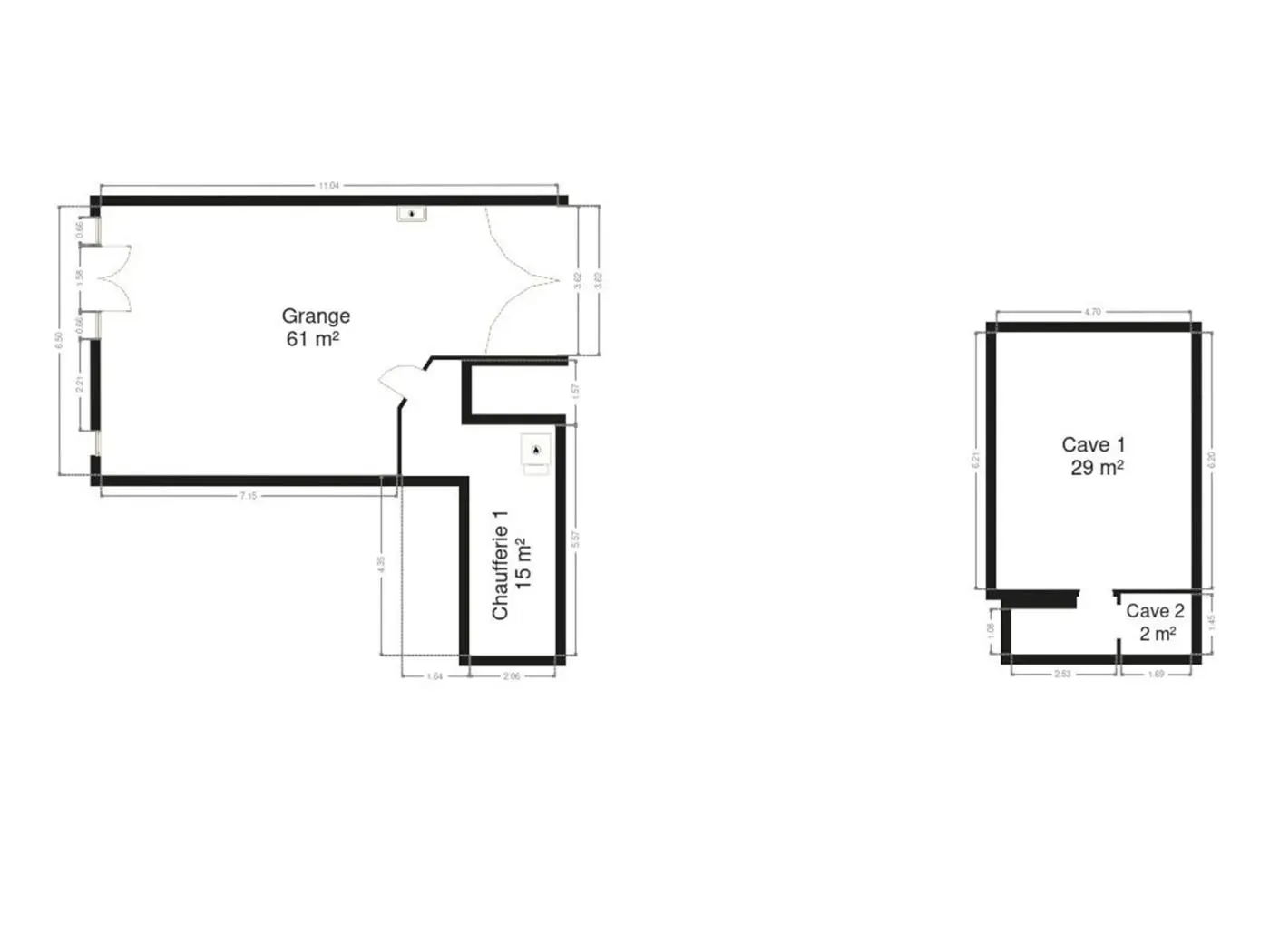
Fermette de caractère avec piscine intérieure
Nichée dans un environnement calme et verdoyant à Braine-le-Château, cette authentique fermette de caractère développe ±761 m² habitables sur un superbe terrain de 3.058 m² orienté sud-est.
Ce bien d’exception séduit immédiatement par son cachet unique et son atmosphère chargée d’histoire, avec notamment une cheminée d’époque qui apporte chaleur et authenticité aux espaces de vie.
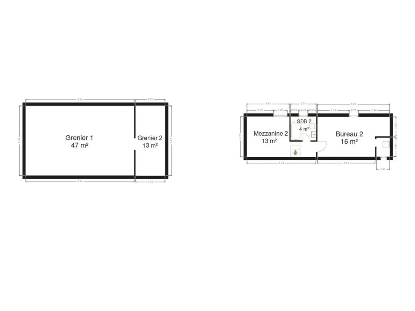
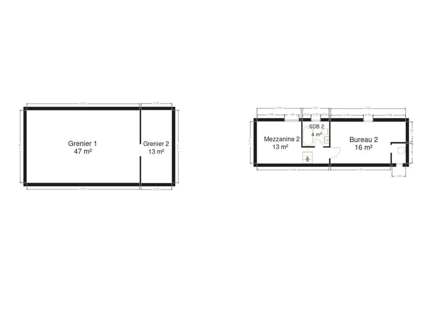
La propriété offre de très beaux volumes avec plusieurs séjours lumineux, trois cuisines entièrement équipées ainsi qu’une configuration idéale pour une grande famille ou un projet mixte. Elle dispose de 6 chambres et de 5 salles d’eau, garantissant confort et flexibilité au quotidien.
Véritable pièce rare, un espace bar authentique datant de la Seconde Guerre mondiale, lié à la résistance, confère à la maison une dimension historique unique et un charme incomparable.
Une piscine intérieure chauffée avec accès direct vers la terrasse et le jardin complète cet ensemble, permettant une utilisation toute l’année dans un cadre privilégié.
À l’extérieur, vous profitez d’un vaste jardin plat et parfaitement orienté, ainsi que de nombreuses possibilités de stationnement.
Sur le plan technique : chauffage central, panneaux photovoltaïques, climatisation, double vitrage et système d’alarme. Idéalement située à proximité des commodités, écoles et axes principaux, cette propriété rare séduira les amateurs de biens de caractère, d’espace et d’histoire.
- Référence 16751
- Catégorie Fermette de caractère avec piscine intérieure
- Meublé Non
- État du bâtiment Emménageable
- Chambre(s) 6
- Salle(s) de bains 2
- Salle(s) de douche 3
- WC(s) 3
- Grenier Oui
- Chauffage Convecteurs
- Cuisine hyper-équipée
- Vitrage Double
- Avec bureau Non
- Ascenseur Oui
- Surface du living 761 m²
- Surface brut 326 m²
- Surface du jardin 2732 m²
- Surface du terrain 3058 m²
A
B
C C
D
E
F
G
- Code unique 20221121021592
- Energie spécifique (kWh/m²/an) 212
- Energie totale (kWh/an) 151977
- Emission CO2 (kg CO2/m²/an) 7
1.499.000 €
Intéressé par ce bien ?
081 22 98 22
ou via notre formulaire